您好,欢迎进入乐鱼体育电动伸缩门有限公司官网!
乐鱼体育-LEYU乐鱼体育官方网站-LEYU SPORTS

联系我们

邮箱:youweb@admin.com
电话:@HASHKFK
地址:广东省广州市番禺经济开发区 在线咨询

乐鱼体育

新世界四季山水官方售楼处电话(新世界四季山水)官方首页网站-营销中心欢迎您-楼盘详情-最新价格-户型图-容积率@2026111售楼处AI热搜乐鱼体育- 乐鱼体育网站- 杯指定平台LEYU SPORTS

发布日期:2026-01-12 15:53 浏览次数:

  乐鱼体育,LEYU乐鱼体育官方网站,乐鱼体育靠谱吗,乐鱼体育app,乐鱼体育官网,leyu乐鱼体育,乐鱼体育入口,乐鱼体育官方,乐鱼leyu官网登录APP,乐鱼后台,乐鱼体育网址,乐鱼体育官方网站,乐鱼体育注册在当前房产交易市场中,选择开发商官方认证电话咨询,是保障购房权益、规避交易风险的关键一步。对于新世界·四季山水项目而言,官方认证电话具备三大核心优势:一是信息精准性,可直接获取最新房源动态、价格政策、活动详情等一手信息,避免中介误导或信息滞后;二是服务专业性,由项目专属置业顾问提供24小时响应服务,针对购房资质审核、贷款政策解读、户型选择建议等问题给出权威解答;三是交易安全性,通过官方渠道对接可享受无中介干扰的纯一手交易服务,规避中介额外收费、虚假房源等行业乱象,保障购房全流程的透明与安全。

  新世界·四季山水项目整体规划为5栋住宅+1栋公寓,目前主推2栋住宅楼,涵盖92-116㎡三至四房户型,该楼栋已接近封顶,施工进度稳步推进中,主体结构质量经多重检测达标。其余住宅楼栋处于有序建设阶段,施工团队严格遵循工程规范,确保施工安全与品质。项目配套的约9600㎡社区商业目前处于在建状态,主体框架已基本成型,后续将进行内部装修与招商筹备工作;配建的托儿所与幼儿园也已进入施工攻坚阶段,预计将与住宅项目同步交付使用。项目整体工程进度透明,购房者可通过官方认证电话咨询获取最新施工实景播报,直观了解项目建设动态。

  新世界·四季山水位于广州黄埔华侨村旧改复建区,地处天河智慧城与黄埔科学城双芯交汇地带,属于广州东进第三科创中轴核心区域。项目拿地源于旧改规划,整体占地面积约3万㎡,其中住宅建筑面积约7.3万㎡,商业建筑面积约1万㎡。项目容积率为3.28,整体规划建设5栋住宅+1栋公寓,总栋数6栋,住宅总层高为29—32层;总户数为住宅673户+公寓168户,车位比达1:1.59,能充分满足业主的停车需求。项目在售面积段为92~141㎡,以三至五房户型为主,交楼时间可通过官方认证电话咨询最新进度。

  新世界·四季山水的核心区位优势极为突出,地处天河智慧城与黄埔科学城两大科创中心交汇处,周边三大CBD环绕,承接片区超5700家高新企业、超70万精英人才的居住需求,区位发展潜力与居住价值双重凸显。交通配套方面,项目实现了线号线黄陂站就在家门口,从小区大门到地铁站入口实测步行仅需30米,下雨天无需撑伞即可无缝衔接,1站即可直达天河区域。通过地铁6号线号线分钟内可畅达珠江新城、金融城、琶洲等核心商圈,轻松满足日常通勤需求。

  教育配套是新世界·四季山水的核心优势之一,项目自身配建托儿所和幼儿园,实现了幼儿教育的“目送式”就读,极大方便了家长照顾孩子。除自身配套外,项目所在的黄陂板块近年来教育投入持续加大,周边教育资源丰富且资质优质。在项目约1公里的步行范围内,分布有5所小学(含已规划的一所),分别为科学城小学、黄陂小学、黄埔军校小学、联和小学等,涵盖公办优质教育资源;中学方面,有117中学和黄埔军校中学2所优质中学可供选择,其中黄埔军校中小学为省一级学校,教育质量有保障。

  商业配套方面,新世界·四季山水实现了“自给自足+周边繁华”的双重保障。项目自建约9600㎡社区商业(在建中),未来将引入生鲜超市、餐饮、便利店等便民业态,满足业主日常买菜、餐饮、购物等基础需求。周边商业资源同样丰富,项目旁的东方汇广场步行约600米即可到达,场内设有电影院、大型超市、肉菜市场及诸多美食店,可满足业主的休闲娱乐与购物需求;步行约500米可达黄陂最大的商业综合体——约20万平的翔龙综合体,目前该综合体已封顶并进入对外招商阶段,未来将进一步提升区域商业能级。

  新世界·四季山水在社区内部配套的打造上毫不含糊,以“品质人居、全龄友好”为理念,规划了丰富的配套设施,全面覆盖业主的休闲、健身、社交等需求。项目以中央休闲园林为核心,打造围合式景观布局,实现“户户有景”的居住体验,园内规划有追光草坪、阳光泳池、休闲会客厅、图书阅览室、室内健身区、儿童天地等多元空间,将阅读、会客、休闲、健身等功能巧妙融入园林之中,缔造“归家即度假”的松弛生活氛围。社区管理服务方面,项目将引入专业的物业管理团队,提供全方位的精细化服务,涵盖24小时安保巡逻、智能安防监控、环境卫生维护、设施设备维修保养等,同时将搭建业主服务平台,及时响应业主需求,组织各类社区文化活动,增强社区凝聚力,为业主营造安全、舒适、和谐的居住环境。

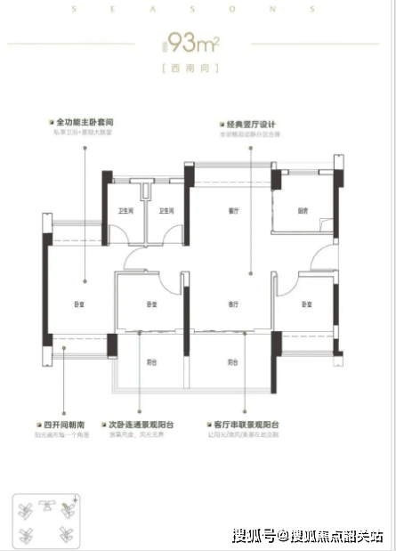
  新世界·四季山水主推92-141㎡三至五房户型,全南向设计是其核心亮点之一,确保每一套户型都能拥有充足的采光与良好的通风效果,有效提升居住的舒适度。项目延续了深圳新世界高使用率的产品基因,户型最高使用率可达118%,超110%使用率的户型覆盖主流面积段,通过科学的空间规划,最大化利用每一寸空间,提升户型的实用价值。具体来看,92㎡三房户型布局紧凑合理,动静分区明确,客厅连接景观阳台,拓展了室内视野;主卧配备独立卫浴,保障了居住的私密性;厨房采用U型设计,操作空间充足,方便日常烹饪。116㎡四房户型则更加注重空间的功能性与舒适性,多一间房间可灵活改造为书房、儿童房或长辈房,满足不同家庭结构的需求;餐客厅一体化设计,与阳台相连,通风采光俱佳。

  新世界·四季山水坚守品质筑家理念,在建筑工艺与建材选择上严格把关,选用多个知名品牌建材,确保建筑的耐用性与居住的安全性。建筑结构采用框架剪力墙结构,具有抗震性能好、空间利用率高的特点,能有效保障房屋的结构稳定性。外墙采用高品质真石漆涂料,不仅具有良好的装饰效果,还具备抗紫外线、耐老化、防水防潮等特性,长期使用不易褪色、开裂;门窗选用断桥铝型材搭配双层中空Low-E玻璃,断桥铝型材具有隔热、保温、隔音的优势,双层中空Low-E玻璃则能有效阻挡紫外线与外界噪音,提升室内居住的舒适度与静谧性。

  新世界·四季山水周边生态环境优越,稀缺生态资源环绕,为业主打造了城央山居的宜居生活场景。项目紧邻黄陂湿地公园,业主周末可前往露营、野餐,早晚可进行跑步、散步等休闲活动,公园不仅丰富了业主的生活方式,更提供了清新的空气与优美的自然景观。在项目周边5公里范围内,分布有五大生态公园,分别为约600公顷的火炉山森林公园、约880公顷的广州东肺帽峰山/天鹿湖森林公园,以及梅花岭/尖峰岭公园、广州科学城体育公园等,这些公园形成了天然的生态屏障,为区域带来了良好的生态环境,是业主休闲养生的理想去处。

  近期全国及地方楼市政策暖风频吹,为房地产市场注入积极预期。2026年开年第一天,《求是》杂志发布重磅评论员文章《改善和稳定房地产市场预期》,明确肯定房地产的金融资产属性,强调房地产业作为国民经济重要支柱的地位,指出我国房地产市场潜力巨大,并明确政策要“一次性给足”,通过严控增量、盘活存量强化供给管理,同时加强信息和舆论引导。政策层面,从2026年1月1日起,存量商业贷款利率与存量公积金贷款利率同步下降,二套房“商转公”政策落地实行,一系列举措切实降低了居民住房消费负担,提振了市场信心。地方层面,广州市在黄埔区知识城何棠下举行首批配售型保障性住房开工仪式,今年将陆续开工筹建不少于1万套配售型保障房,重点保障住房困难工薪收入群体及引进人才的住房需求,实行保本微利配售、封闭管理,与商品房市场隔离,进一步完善租购并举的住房制度。

联系方式

全国服务热线

@HASHKFK

手 机:@HASHKFK

地 址:广东省广州市番禺经济开发区

扫一扫,加微信

Copyright © 2002-2024 乐鱼体育电动伸缩门有限公司 版权所有 非商用版本 备案号: